《锦上流年》
此心安处是吾家
项目地址:重庆上品拾陆
面积:65平方米(室内)
改造费用:10万
设计:王城炫
风格定位:新中式、民族风、混搭
施工负责:刘福伟
摄影:JunJun
文案:王城炫
岁月对待每一个人并不是公平的,就好像你永远看不出她的真实年龄和预想的差距这么大。业主余姐,称呼“余姐”只是先入为主的概念,实际她的年龄比我父母还大,一直很惊讶,直到我们接触了她的儿子儿媳后,改造了照明山的精装房才能确定她真的很“年轻”。从事旅游行业的余姐,每年全国各地乃至全世界各地到处旅行,去过许多地方,见过不同的风景,始终觉得家是最美的风景线。所以她打算把十年前装修的房子也重新改造一下。

旧房子改造和重装还是有很大区别。和余姐沟通过,她希望在主体结构上不要有太大改动,之前的装修可能会牵一发而动全身。除了封闭掉玄关的一个窗户外,敲掉我过道的吊顶之外,剩下的我们尽可能在软装上施展功夫。前期的沟通和效果图,整体调性更偏向于波西米亚混搭风,但硬装施工完成后,软装家具的搭配慢慢的感觉好像文艺中式的韵味更浓厚了。

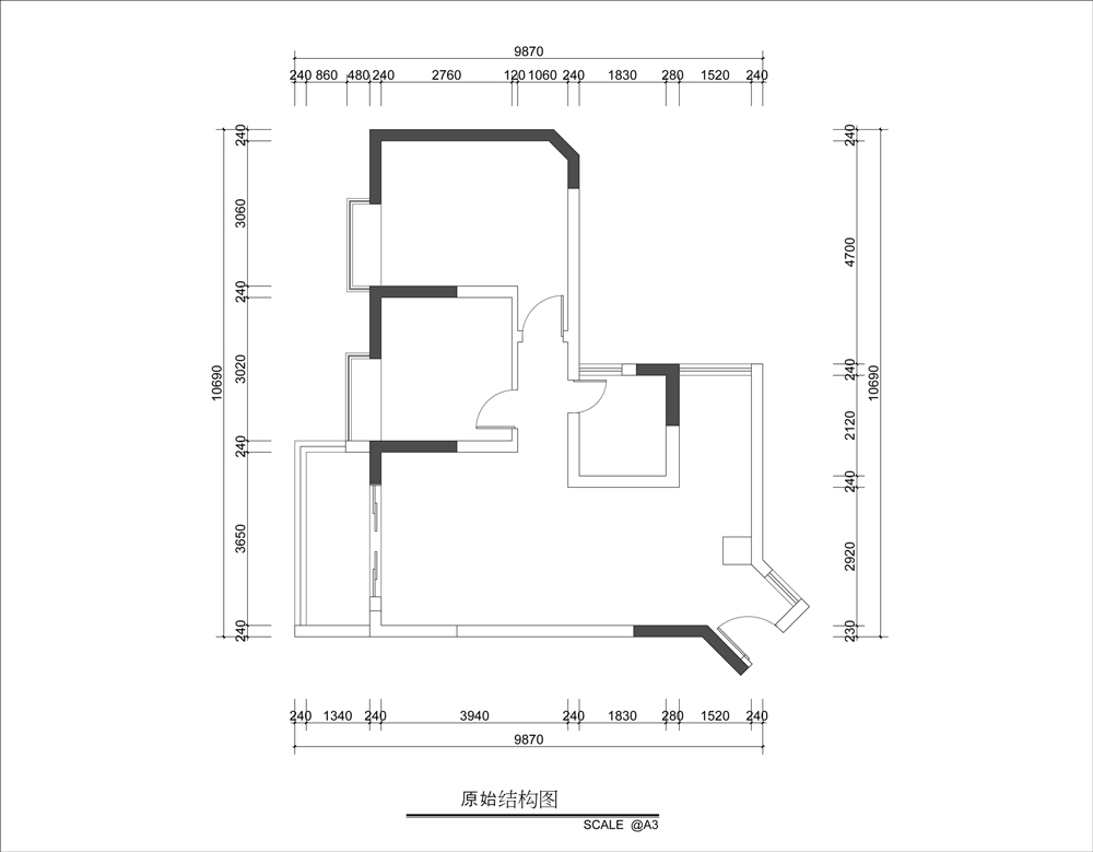
改造前

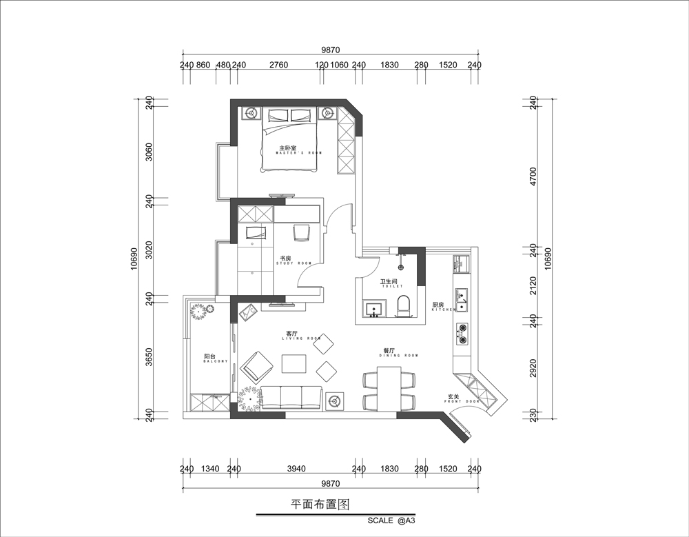
改造后

进门的玄关处,由于采光井的采光几乎不起作用,于是封闭了做成整面墙的鞋柜,用墨绿撞亮黄色,给人视觉上的冲击力。镂空的换鞋凳设计让玄关的空间尺寸看起来不那么拥堵。
改造前

改造后

连接玄关的厨房区域,原来摆放的双开门大冰箱让空间太过拥挤。经过空间朝向和采光分析,结合业主平时的生活习惯。我们把冰箱位置挪动到阳台处。南北朝向,太阳基本不会直晒
阳台,加上业主平时很少在家做饭,变换位置后,开放式厨房显得更大。玄关到厨房和餐厅,动线也更加合理。而在厨房设计上,保留橱柜原柜体保留,把橱柜柜门换成了和鞋柜同样的墨绿色,让这块域的色彩更统一。
改造前

改造后

餐厅区域,布局上没有特别大的变动,原设计桌子偏美式,后来业主选了一款中式的桌子,配两款不同的椅子。原因是,在家吃饭不及和朋友在家喝茶的时间多,这样变更后,朋友来家中喝茶,便有了一个喝茶的区域。

改造前

改造后
除此之外,我们在餐桌对应的空墙做了一个非常大胆的跳色,用了亮橙色的质感漆。橙色属于非常热情的颜色,让中式氛围显得不那么拘谨。大面积的橙色和玄关区域相呼应,形成了整个空间的点睛之笔。

改造前


改造后
客厅的银杏叶灯也是和余姐一起选购的,我们看了很多灯一直都不满意,无意间在网上看到了这款。安装的时候,龙哥(余姐的儿子)说,好看是好看,就是太难装了。我们把所有的点光源都换成4000k色温的射灯,灯光无论打在墙面上,还是物体上,空间的氛围感都非常明和。

沙发背景墙上梵高的麦田买来是一套六幅大小不一的画,结果发现尺寸太大了,于是把另外三幅挂在了龙哥家。这样的“关联”,让我们觉得是一个美丽的意外。

编织的茶几是业主网购的,一眼就看上了,在客厅里很是亮眼。唯一的缺陷就是框架的棱角容易磕人,家里有小朋友的最好不要用棱角多的家具。
改造前

改造后

客厅中所有的家具都不是成套,包括电视柜和装饰边柜,各种模样的家具在空间中丝毫没有违和感。混搭的风格最难掌握的就是混的火候,一不注意就容易变成乱搭。

改造前▼

改造后▼
阳台,原本的滑门因为冰箱放在阳台后,门垛需要加宽。如果再用滑门,每扇门尺寸太小,出入会很局促。于是我们换成了原木色的折叠门。对于采光好又不会直晒的客厅,折叠门简直就是空间改良神器。

阳台墙面全部用木板和经过防腐处理的竹子包围,在方寸之间也能有一片小资情调的天地。

改造前▼

改造后▼
原主卧室只刷了粉色乳胶漆,新的家具为了和旧的衣柜更搭,我们把大面积的墙面刷成同样的白色,床头用了一张无缝壁纸,像油画的笔触。



床头两边不对称的床头柜。
改造前▼

改造后▼

书房在设计之初,余姐就说书房希望能用“书皮蓝”,一头雾水的我猜测“书皮蓝”是不是像武侠剧里某个秘籍的书皮颜色,果不其然。这样的深蓝色和深木色搭配在一起异域感很强。原设计榻榻米是做到1.5宽,没有做底部书架。后来减到1米,余姐家里的书很多,希望有地方存放,而在底部开放式的书架,一开始我非常担心清洁问题,后来发现多虑了。开门书房门看到琳琅满目的书整齐的摆放在一起的时候,感觉整个空间的气质都不一样了。

而扩大的区域,除了让书桌更宽敞之外,也有更多空间可以在书房练瑜伽。

无论是新宅新装还是旧房改造,对于我们来说都是同样重要,捕捉业主生活的习惯和美学态度,做出合适的设计。只有足够热生活的人,才会把日子过的像诗一样美丽。敲下一笔笔文字,已经临近19年春节,新的一年,愿你生活得比诗和远方更美丽。
扫描二维码分享到微信